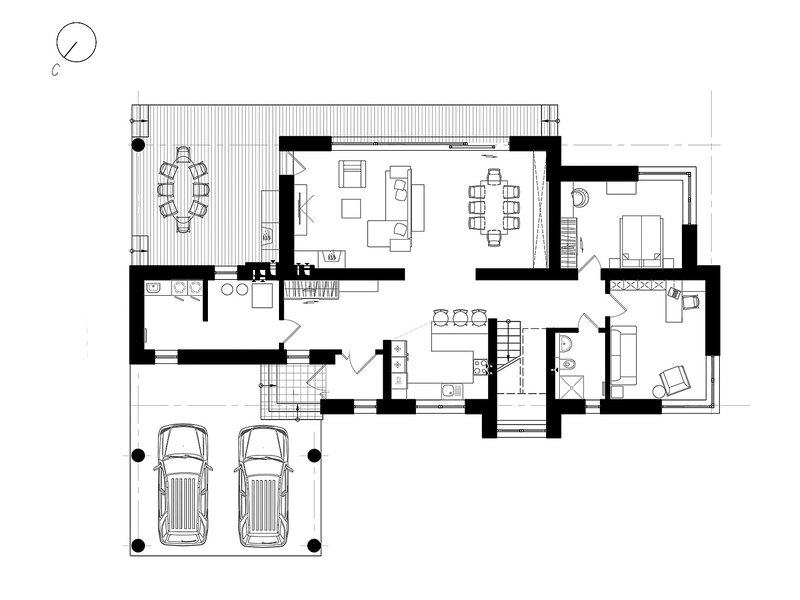
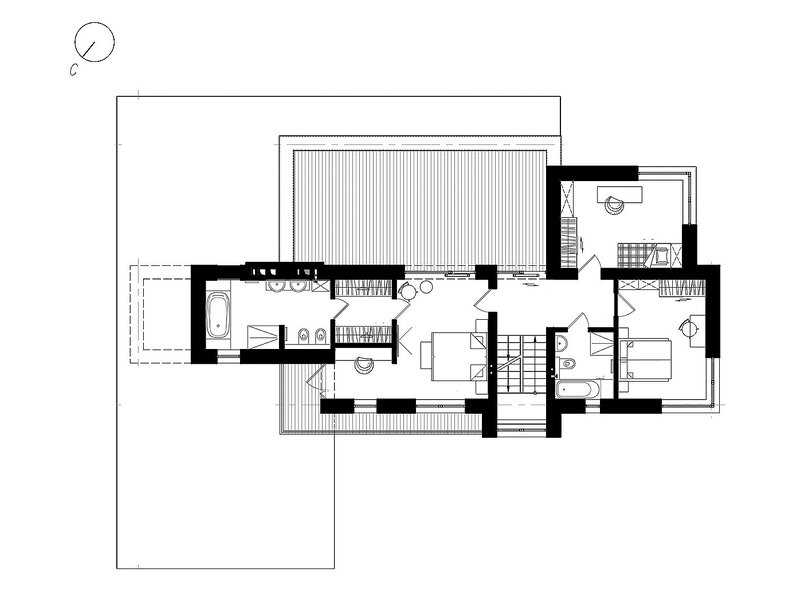
210м2
Локация
Срок разработки
Год
Планировка
Оставьте заявку, и мы свяжемся с вами в течение 24 часов. Обсудим вопросы вашего уникального проекта, с чего начать и как строится работа. А еще поделимся ценными рекомендациями из практики.
Ответим в удобном для вас мессенджере: Telegram Viber WhatsApp
Согласен(на) с Политикой обработки персональных данных.
Хотите обсудить задачу или требуется экспертное мнение – свяжитесь с нами. Гарантируем, мы ответим вам в течение 24-х часов.
Ответим в мессенджерах: Telegram Viber WhatsApp