Проект дома Тартак, 265 м2

Проект дома Тартак, 265 м2
Общая площадь

265м2

Стоимость реализации

Общая стоимость реализации
(ориентировочно)

Локация

д. Граничи, Минская область, Беларусь

Срок разработки

60 дней

Год

2016

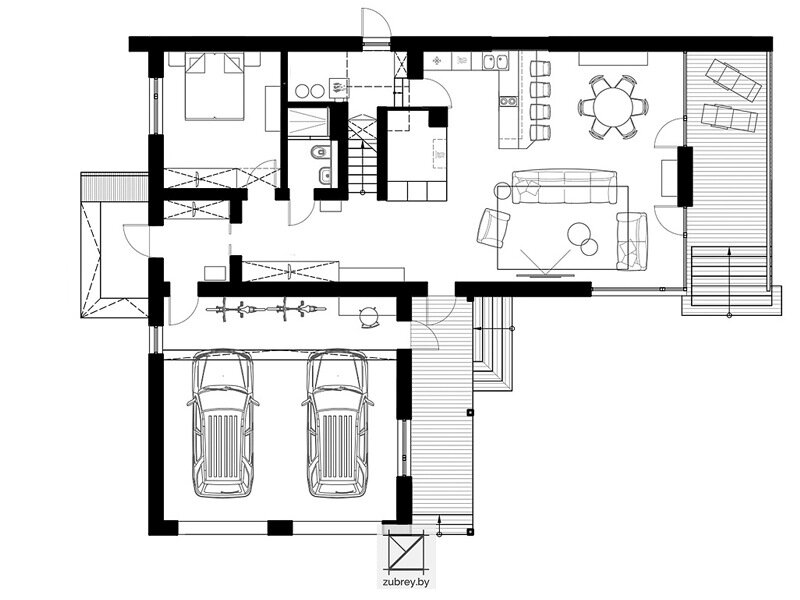
Проект современного индивидуального двухэтажного жилого дома для молодой семьи с двумя детьми. Дом спроектирован с учётом рельефа участка и просторных видов на лес вниз по склону, с противоположной стороны проезда.

Задача

Создать проект двухэтажного дома для семьи с двумя детьми. В планировке 1-го этажа дома предусмотреть раскрывающиеся виды на участок со склоном и печь с лежанкой.

Особенности проекта

Яркой чертой дома является его односкатная кровля массивной толщины, которая переходит в наружную стену. Эта особенность задана умышленно ввиду сложной конструкции перекрытия, выполненного из деревянных ферм. Такое решение позволило сделать кровлю свободно "парящей", без привязки к несущим стенам.

Важно для Заказчика

У дома индивидуальный незабываемый образ, в котором вписана планировка, 100% отвечающая запросам Заказчика.

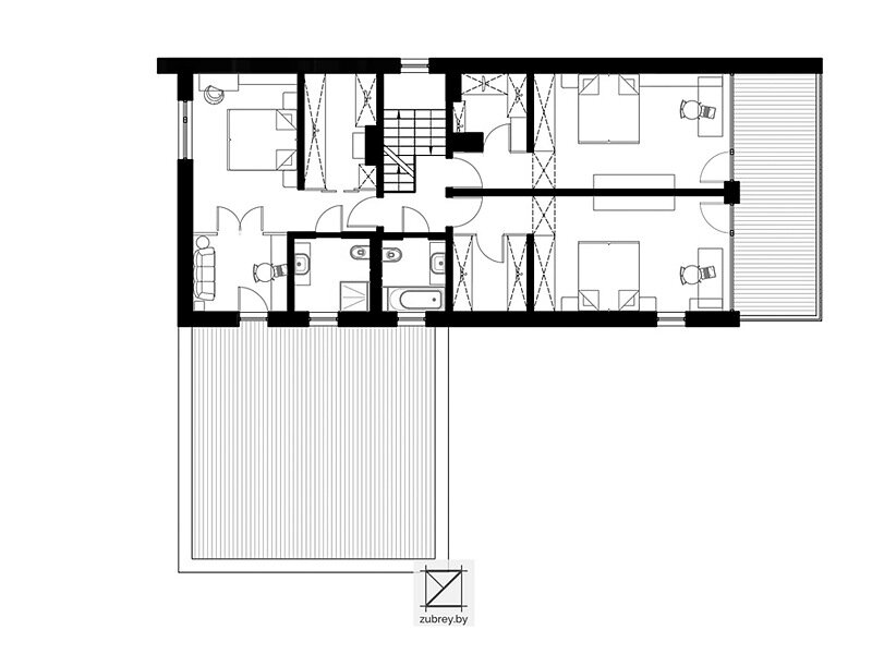
Планировка

Как реализовывали проект смотрите в нашем Архдизайн блоге

Смотреть другие проекты

Хотите обсудить задачу или требуется экспертное мнение – свяжитесь с нами. Гарантируем, мы ответим вам в течение 24-х часов.

Ответим в мессенджерах:
Telegram Viber WhatsApp

заявка