Дизайн интерьера двухэтажного дома для молодой пары с 2-мя детьми. Интерьер с элементами стиля лофт и смелыми цветовыми решениями для хозяйки профессионально увлекающейся цветоводством.
Задача
Разработать дизайн интерьера дома для молодой семьи с 2-мя детьми. Необходим стиль лофт или что-то подобное, яркие цвета и побольше комнатных растений.
Особенности проекта
Гармоничное сочетание натурального дерева вишни, клинкерного кирпича, металла с грубыми фактурами и ярких цветов в материалах отделки и элементах интерьера. Ни одного похожего по цветовой гамме помещения.
Важно для Заказчика
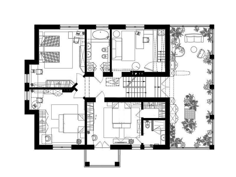
Удобная, логичная планировка и расстановка мебели. Максимум дневного света и разнообразие цветов с их гармоничным сочетанием подчёркивает ощущение “живости” и энергии дома.
Продуманное место хранения одежды и обуви с местом посадки. Стиль интерьера и отделки в связке с коридором 1-го этажа и лестницей.
Столовая, 1 этаж
Камерное и уютное пространство с акцентными светильниками из необработанного металла на стене.
Галерея сувенирных тарелок из самых увлекательных путешествий семьи на фактурной стене, отделанной натуральным клинкером.
Гостиная-кухня, 1 этаж
Роскошь цветовых сочетаний и натурального дерева вишни. Камин и «живая стена», соединяющая зону завтраков.
Комната для гимнастики, 1 этаж
Зона для «спорт-ритуалов» хозяйки дома и старшего сына с особенностями физ. развития. Коктейль из энергии цвета и жизни.
Зимний сад, 2 этаж
Многофункциональное пространство-оазис для отдыха семьёй, уединения и хобби хозяйки.
В дизайне зимнего сада спланирована зона с водопадом и мебелью из натурального ротанга, клетка с экзотическими птицами, зона для выращивания растений и места хранения необходимого инвентаря и оборудования. Зеркала на фасадах мебели увеличивают количество дневного света и визуально увеличивают пространство, с долей особенной театральности.
Кабинет, 2 этаж
Личное пространство для уединения, работы и отдыха главы семьи, ценящего стиль и натуральные материалы. Успешного предпринимателя и поклонника футбольной команды Арсенал.
Комната девочки, 2 этаж
Личное пространство маленькой принцессы и маминой помощницы. На стадии проекта дома были предусмотрены необходимые функциональные зоны интерьера комнаты девочки с учётом взросления. На визуализациях предусмотрены сценарии замены мебели во всех зонах без изменения отделки помещения.
Ванная, 2 этаж
Многофункциональное помещение общей ванной со своим терракотовым стилем. Планировка ванной вместила в себя всю необходимую сан. техническую посуду с роскошной ванной у окна и зону со стиральной машиной и дополнительными местами хранения необходимой химии и аксессуаров шкафу.
Оставьте заявку, и мы свяжемся с вами в течение 24 часов. Обсудим вопросы вашего уникального проекта, с чего начать и как строится работа. А еще поделимся ценными рекомендациями из практики.