Двухэтажный дом 207м2, Таборы

Двухэтажный дом 207м2, Таборы
Общая площадь

207м2

Стоимость реализации

1850$/м²

Общая стоимость реализации
(ориентировочно)

300150$

Локация

д. Таборы, Минский район, Беларусь

Срок разработки

45

Год

2024

Дизайн дома в Минском районе для молодой семьи спортсменов. Стиль дома — гармоничное сочетание с наружной архитектурой и современным стилем кантри. Лаконичные решения, кофмортная атмосфера и необычные детали подчеркивают индивидуальность хозяев.

Задача

Создать интерьер в эклектичном стиле, в элементами лофта и стиля кантри для молодой семьи спортсменов с ребёнком. Обязательный акцент — мебель кухни в гамме красного цвета.

Особенности проекта

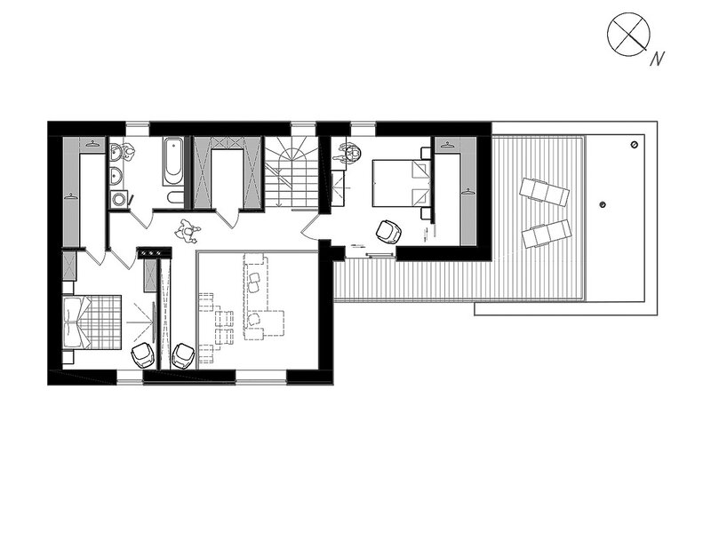
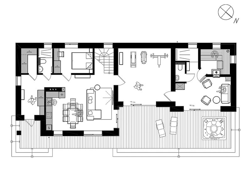
Интерьер дома со вторым светом, частично открытым коридором 2-го этажа.

Важно для Заказчика

Красная кухня, современный стиль интерьера без излишней аскетики.

Смотреть другие проекты

Хотите обсудить задачу или требуется экспертное мнение – свяжитесь с нами. Гарантируем, мы ответим вам в течение 24-х часов.

Ответим в мессенджерах:
Telegram Viber WhatsApp

заявка