Дизайн интерьера квартиры для молодой семьи с сыном 4 лет. Интерьер квартиры в стиле современной классики построен на балансе натуральных материалов, тактильных поверхностей и продуманной геометрии. Тёплый шпон дуба, массив и камень создают ощущение спокойной премиальной среды, где каждая деталь работает на комфорт и эстетику.
Задача
Создать дизайн интерьера квартиры с элементами современной классики в пастельных тонах с возможными улучшениями в планировке
Особенности проекта
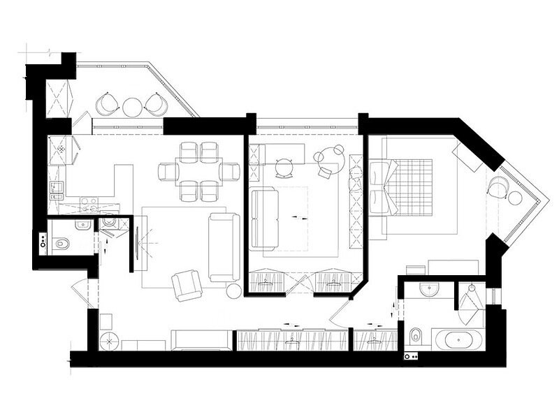
Приватная зона хозяйской части квартиры - ванной, небольшой гардеробной и спальни. Удобная логистика и связь общих функциональных зон.
Важно для Заказчика
Много воздуха, выдержанная гамма, продуманные мелочи в отделке квартиры и дизайне интерьера в целом
Пространство выглядит цельным за счёт встроенной мебели, продуманных мест хранения и цветовых акцентов. Зеркальные панели в зоне столовой придают дополнительную глубину пространству.
Ванная
Ванная, в которой с абсолютным удобством разместились все зоны и необходимая сан. техническая посуда. Контраст плитки и тонкие акценты стеклянных декоров, цвета морской волны, продолжают цветовую концепцию интерьера.
Гостевой с-узел
Молочная гамма с-узла и нетипичная форма плитки призваны удивлять гостей.
Лоджия
Цвет мокка как отображение любимого утреннего ритуала хозяев квартиры.
Оставьте заявку, и мы свяжемся с вами в течение 24 часов. Обсудим вопросы вашего уникального проекта, с чего начать и как строится работа. А еще поделимся ценными рекомендациями из практики.