Ландшафтный дизайн участка 9 соток, Минск

Ландшафтный дизайн участка 9 соток, Минск
Общая площадь

900м2

Стоимость реализации

Общая стоимость реализации
(ориентировочно)

Локация

мк-р Веснинка, Минск, Беларусь

Срок разработки

45

Год

2025

Яркий пример лакончиного и функционального дизайна ладншафта на небольшом участке в престижном районе Минска.

Задача

Разработать дизайн благоустройства участка вместе с реконструкцией дома и появлением новых объектов беседки и навеса для авто.

Особенности проекта

Вместили на небольшой площади всё необходимое, связали функционально в единый ансамбль с отличными видовыми точками, создающими ещё больше пространства.

Важно для Заказчика

Учесть размещение на участке существующих плодовых деревьев, организовать зону отдыха с фонтаном, небольшой огород и теплицу.

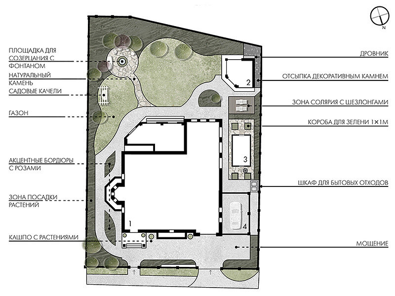
Планировка

Как реализовывали проект смотрите в нашем Архдизайн блоге

Смотреть другие проекты

Хотите обсудить задачу или требуется экспертное мнение – свяжитесь с нами. Гарантируем, мы ответим вам в течение 24-х часов.

Ответим в мессенджерах:
Telegram Viber WhatsApp

заявка